
2020-10-10 10:00:04 来源: 阅读:-
本案是设计师自己的家,使用面积128㎡,坐标:江苏苏州。
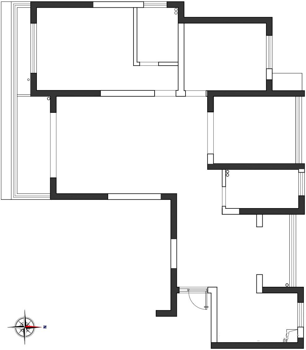
原始结构图
平面布置图
✦这排柜子需要满足鞋柜,餐边柜,更衣柜的三个功能;
✦将餐厅和北阳台之间的墙体拆除,进门空间开阔;
✦主卧和次卧的房门向客厅拓35cm,主卧门向南移50cm,这样客厅的书柜嵌入式处理,主卧门后多了一排1.5米的独立衣柜,次卧室的空间感也大些;
✦客厅的阳台和主卧外面的空调外机平台整体向外扩了约50cm(开发商遗留),因为用了中央空调,外机放在客厅阳台柜子后面的一个区域了;
✦次卧空间不大,需求简单,做了整面柜体处理,小孩房没有设置衣柜,要在这里放置衣服。
进门打造整排柜体,靠近门处设计坐区,旁边是鞋柜,中间是餐边柜,最右边是更衣柜,基本满足玄关和餐厅功能。
●换鞋凳、穿衣镜、鞋柜结合
●不同功能柜体设计不同形态
●进门留个感应灯
餐厅与北阳台合并,扩大使用面积与采光,2.1米的实木大桌和餐椅看起来贵气逼人。
靠墙布置木邻餐边柜,正好将弱电箱挡住。
厨房设置三折叠吊轨移门,让入口变大,同时完全不挡住冰箱门,可以开启到最大角度,方便拿取。
●三折叠吊轨移门适用于大门洞
厨房高低台设计,洗菜不弯腰烹饪不抬手,灶台后面一面墙没有贴砖,中间是台面直接翻上去,整个厨房台面没有挡水条,利落好用无死角,对瓦工师傅和台面师傅要求比较高。
●台面不等高设计
●油烟机背景墙直接用台面上翻一体化
●吊柜下留好灯光
地面通铺木地板,木材保留树皮而形成的白边,让空间不至于太闷。
客厅无主灯顶面设计,分区分功能布置照明,与阳台之间装了吊篮。
●分区散点照明,灯光更有层次
把传统电视背景改成了书墙,底部悬空可以让收纳筐玩具盒更方便的推进去拉出来。
●底部悬空留收纳盒位置
百叶玻璃门是去家政阳台的。
●犄角空间做好定制柜
阳台另一侧做了置顶收纳柜,把承重墙体包入其中,视觉上更具整体感。
●柜门包入墙体,统一里面
●大型绿植配移动小推车方便移位
房门做到顶处理,对空间具有拉伸效果。
客卫选用石材一体盆,清洁打扫方便,浴帘取代玻璃隔断,经济实惠并且可以随时更换。
●一体盆更好打理
●电热毛巾架方便烘干毛巾
●浴帘节省空间和预算
●淋浴区做了地面下沉方便排水
次卧做了整面衣柜,解放儿童房空间,门板做了双色处理,视觉上让床也有区域感。
●床头整排柜体留出格子当床头柜
●双色处理让床头有区域感
床架后面的柜门也是可以打开的,衣服可以挂下去,旁边增设一个开放格,充当床头柜功能。
儿童房原来是空中花园,开门是大的玻璃移门,在砌墙的时候没舍得砌双墙,形成了凹洞,让木工师傅用剩下来的一点实木板,钉了个小置物台,站在踢脚线上,用来放小朋友的乐高小人和各地收集来的小石头。
●犄角空间废物利用
靠窗布置小帐篷,为孩子支起一片欢乐的小天地。
主卧进门处的水泥灰衣柜是给男主准备的,女主的衣柜就是纱帘后的这根横杆,当季的衣服放在这里,过季的放在次卧的整面衣柜里。
●帘子当柜门节省预算又方便
除了地板、墙布外,其他的都来自左尚明舍。
主卧旁的家政阳台,地面用了隐藏式地漏。
为了保留洗衣机上面的窗户,没有叠放烘干机,选了洗烘一体,利用洗衣机上面不到30公分高的墙体装了左尚明舍的隔板和抽拉篮用来放置脏衣服。
主卫和次卫都采取了下沉式处理,配合浴帘很方便,没有卫生死角,不用擦玻璃。